Ficha
Oportunidad de inversión: estructura de vivienda unifamiliar en construcción
Albinyana - REF. 1936

212 m2

6

2
venta: 120.000 €
Descripción
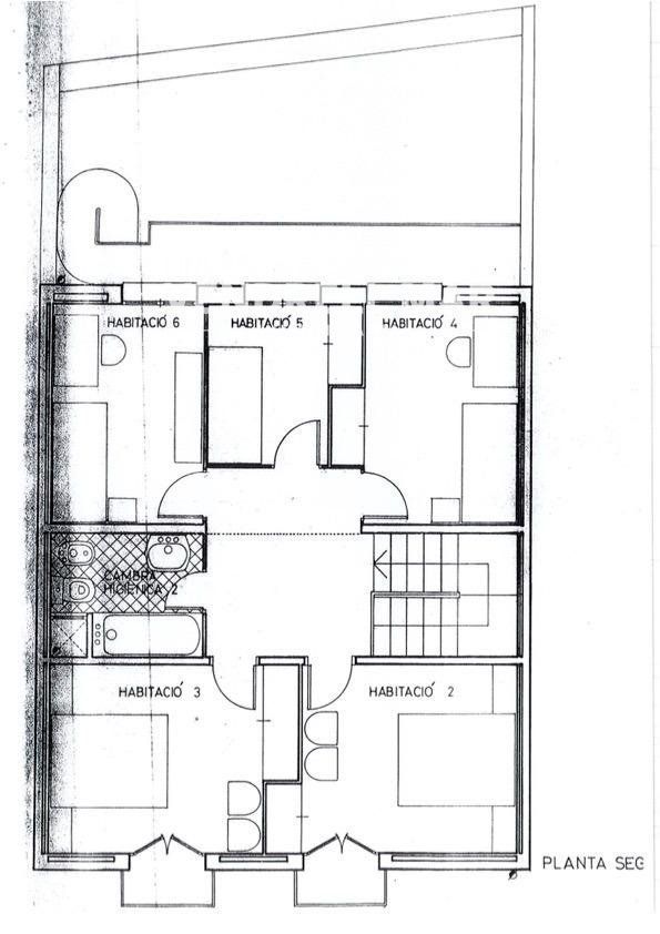
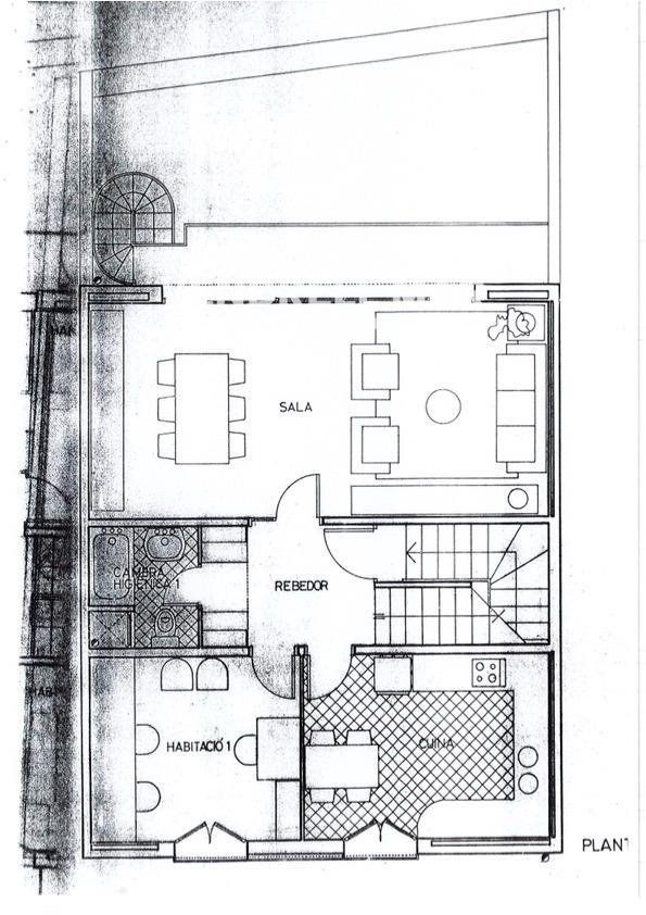
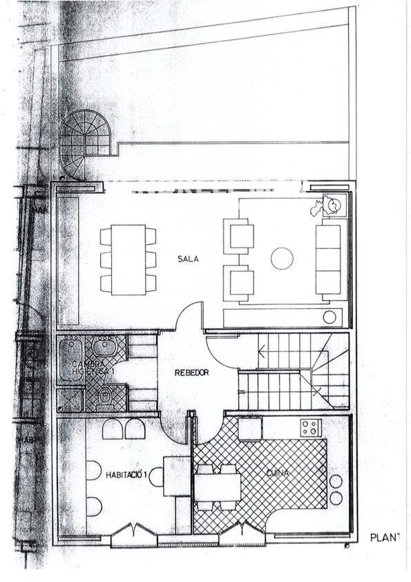
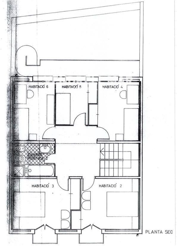
Se ofrece una estructura de vivienda unifamiliar entre medianeras en una ubicación estratégica, ideal para constructores e inversores que busquen finalizar una obra con gran potencial de rentabilidad. El proyecto cuenta con los muros de carga y la cimentación ya ejecutados, ahorrando tiempo y recursos...Descripción del proyecto:.-Superficie total construida: 212 m² distribuidos en tres plantas..-Distribución prevista:.-Planta baja: garaje amplio, zona de acceso y un baño..-Planta primera: salón-comedor espacioso, cocina independiente, un dormitorio y baño completo..-Planta segunda: cinco dormitorios (tres dobles y dos individuales) y un baño..-Diseño versátil: posibilidad de personalización según las necesidades del comprador..-Detalles adicionales: terrazas en las plantas superiores y buena iluminación natural...Ventajas del proyecto:.-Ahorro significativo: Estructura y elementos básicos ya construidos..-Ubicación estratégica: Zona con alta demanda residencial..-Flexibilidad: Ideal para adaptarlo a vivienda familiar o para inversión...Una excelente oportunidad para completar una obra con gran potencial de revalorización. Contáctanos para obtener más información sobre el proyecto y visitas.
Características
Precio Venta 120.000 €
Precio/m² 566 €/m²
Año de construcción 1985
Construidos 212 m2
Útiles 148 m2
Dormitorios 6
Baños 2
Estado En construcción
Calificación Energética (G) VER
Escalas de eficiencia


-
-

Contáctanos

Si deseas más información sobre esta propiedad, por favor, rellena el formulario.

 Sí, he leído y/o acepto las Condiciones de uso y la Política de privacidad
Inmuebles similares:
 
110.000 €
Ref. 1916  92 m2  3  1

Casa de pueblo a reformar, reformala a tu gusto, situada en zona tranquila entre El Vendrell y las pederes de Santa Oliva, ahora solo queda que le des rienda a tu imaginacion, la visitamos??, llamanos!!